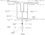
After many years of collecting dust, I'm coming back around to finishing up my 7GCBC wings. I am trying to install the tanks and fuel vent tubing. It appears to me that the tubing was routing on the front of the spar, which would require drilling a hole into the new d-cell leading edge. I was not the one to disassemble the wings, nor are there photos of it when it was disassembled, so I'm just trying to fit the pile of parts back on.
I searched the forum, but the pictures I'm finding are for the smaller (13gal?) tanks, which has the tubing on the backside of the front spar. I have a '69 with (18gal) tanks.
Keep in mind that these wings have been repaired many multiple times in its life, so I have no doubt that how we found it was not how it should be......
I searched the forum, but the pictures I'm finding are for the smaller (13gal?) tanks, which has the tubing on the backside of the front spar. I have a '69 with (18gal) tanks.
Keep in mind that these wings have been repaired many multiple times in its life, so I have no doubt that how we found it was not how it should be......


